Firmamız ; İnşaat Aplikasyonları, Tapu Bölme - Birleştirme, Arsa Arazi ve Tarla Ölçümü, İmar Uygulamaları (Parselasyon, Yol terki İfraz..v.b), Halihazır Harita, Plankote Harita, v.s. gibi yersel ölçüm konularında Mühendislik Çalışmaları üzerine 2006 yılında kurulmuştur.
Yamaç Harita, profesyonel ekibiyle mülki idarelere, kamu kuruluşlarına, mühendislik firmalarına ve haritacılıkla İlgili hizmetlere İhtiyaç duyan diğer tüm müşterilere hizmet ve ürünler sunmak amacıyla kurulmuştur. İleri teknoloji ve deneyimli personelimiz İle jeodezik faaliyetler konularında hizmet vermekteyiz.
İnşaat firmaları, Kamu Kurumları, belediyeler, başta olmak üzere özel sektör kuruluşlarına, Mühendislik ve Mimarlık Ofislerine çözüm ortağı olmak, zaman ve değer kazandırmak İçin çalışan firmamız sağladığı güvenirlilik, yüksek İş ahlakı ve hizmetleri İle güven inşa etmekte ve İş ortaklarının daima İlk tercihi olmaktadır.
İyi eğitilmiş insan gücüne ve İleri teknolojiye önem veren, İlke ve kalite standartlarından ödün vermeyen firmamız, yıllardır kamuda ve özel sektörde edinilen tecrübe, uluslararası proje deneyimi, etkinlik ve örgütsel verimliliğin eşliğinde değer yaratan bir marka olma yolunda İlerlemektedir.
"YAMAÇ HARİTA" bir YAMAÇLAR 1949 Kuruluşudur.
Harita Kadastro Mühendisi
tapu ayırma , parselasyon , tarla / bahçe / parsel ölçümü , yapı Aplikasyon ölçümleri , besihane ve hayvancılık ile ilgili hertürlü ruhsat ve kurum görüşlerinde istenen harita kadastro evraklarının hazırlanması , vaziyet ve bağımsız bölüm planı , kübaj hesabı , plankote , mevziplana esas halihazır harita , hisseli parsellerde hisse gösterimi , maden sahalarındaki ölçümler , Restorasyon projelrine esas röleve ölçümleri ofisimiz tarafından yapılmaktadır .

Hisseli veya Tam hisseli tapuların Ayrılma İşlemidir. Planlı Alanlarda ve Plansız Köy Yerleşim alanlarında hisseli tapuların Yönetmelikte belirtilen şartlara (Planlı Alanlarda 12x18m.) (Plansız Alanlarda 15m.x20m.) göre bölünmesi işlemidir. Yakşalık 5~6 hafta sonunda Kadastro Müdürlüğünden onaylanan Ayırma Projesi Dosyası Tapu Müdürlüğüne geçer.

Taşınmaz Parselin veya Tarlanın Resmi Koordinatlarına göre Sınır Noktaları belirlenir. [TUSAGA (Türkiye Ulusal Geoid Ağı) (CORS) Sistemi ile ölçüm yapılır. Taşınmaz sahiplerinin istemde bulunmaları halinde hisseleri oranında arazi üzerinde gösterimi yapılır.

İmar planı bulunan parsellerde Plana Esas Yol Terki , Park Terki vb. kamusal alanlara terk yapılması ve uygun hallerde kalan kısmın parsellere ayrılması işlemidir. Vatandaş talebine bağlı yapılan imar uygulamaları İmar Kanunu 15. Ve 16. Maddelerine göre yapılır . Kamu yararı öncelikli yapılan İmar Kanunu 18.madde uygulaması ise daha büyük ölçekli alanlarda ve uygulama sahasında Tüm maliklerden eşit alan (DOP) düşülmesi esasına dayanır. (D.O.P.;Düzenleme Ortaklık Payı)

fabrika binaları ve özel yapıların çatılarına kuyralacak güneş enerji panelleri ile elde edilecek elektrik enerjisi projesileri için gerekli, olan çatı ölçümleri ve onaylı vaziyet planların tarafımızdan yapılmaktadır .

fabrika binaları ve özel yapıların çatılarına kuyralacak güneş enerji panelleri ile elde edilecek elektrik enerjisi projesileri için gerekli, olan çatı ölçümleri ve onaylı vaziyet planların tarafımızdan yapılmaktadır .

Tarihi Değere Sahip Yapıların Restorasyon ve Rekonstrüksiyon Çalışmalarında mevcut halihazır durumu Röleve ölçümleri yapılır.

mimari projelere esas yapıların köşe ve aks noktaları kordinatlandırarak arazi üzerine aplikasyonu yapılır.

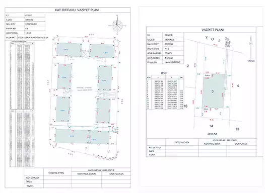
Kat İrtifakına, İskana ve Kat Mülkiyetine esas, Mimari Projeye bağlı sayısal ortamda Ülke Koordinat Sisteminde ve 3 boyutlu (X,Y,Z) üretilen Yapı Modelidir.

dere ve akarsuların istenen kordinat ve kot ölçümleri yapılarak şevli kotlu halihazır haritası hazırlamaktayız .

Mevzi Plan , Mimari Proje , Akarsu ve Kanal Islahı , Resterasyon ve Yapı Tadilat v.b. projelerine esas Halihazır Harita üretimidir.